Descrizione
A ridosso della Via del Mare, tra le stazioni treno – metro di Tor di Valle e Magliana, precisamente in Via del Trotto, 95, proponiamo in esclusiva la vendita della piena proprietà di un terreno con sovrastante tettoia ad uso artigianale, posta su un lotto di terreno di circa 800 mq. La tettoia che ha un’altezza dal piano di campagna di cinque metri ricopre una superficie di 70 mq. Ampio parcheggio antistante la tettoia.
La tettoia attualmente è tamponata, ma la proprietà dovrà provvedere a propria cura e spese a rimuovere la tamponatura in quanto non legittimata urbanisticamente dalla domanda di condono in corso di ultimazione. Struttura utilissima per deposito e stoccaggio merce, in posizione limitrofa al centro di Roma adiacente l’Eur e le Zone di Marconi San Paolo.
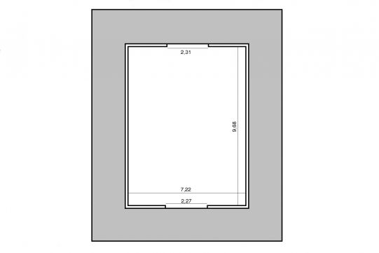
Altezza pavimento - tetto circa metri 5,10.
Esposizione: la tettoia ha tutte e quattro le esposizioni Est – Sud – Ovest – Nord.
L’importo richiesto potrà essere corrisposto con un contratto Rent to Buy, mediante Atto notarile trascritto in Conservatoria. Definito il predetto contratto l’Acquirente avrà il godimento del bene. La proprietà immobiliare sarà trasferita alla firma del contratto definitivo di pagamento.
Acconto di circa il 50% del prezzo di vendita definito alla sottoscrizione del Rent to Buy; il restante pagamento dilazionato in 24 mesi con importi da concordare tra Venditore e Acquirente.
Rifiniture
La tettoia ha una copertura realizzata con pannelli di lamiera coibentati, prefabbricati, di spessore di cm 5.
E’ presente un pozzo idrico.
LE FOTOGRAFIE, CHE POTETE OSSERVARE NELLA PRESENTE SCHEDA, SONO STATE SCATTATE UTILIZZANDO UN GRANDANGOLARE. PERTANTO CONSIGLIAMO DI CONSULTARE LA PLANIMETRIA, CON LE RELATIVE MISURE RILEVATE DIRETTAMENTE SUL POSTO.
Superficie commerciale - Dati catastali
In Catasto Via del Mare SNC. Accatastato C/3 - Consistenza 70 mq. Rendita Euro 629,04.
Conservatoria
PROVENIENZA: Atto di compravendita del 16/06/1986 del Notaio Maria Antonia Russo di Roma, Rep. 27035 Racc. 8534.
GRAVAMI: in corso di verifica le visure presso la Conservatoria dei Registri immobiliari.
Riferimenti urbanistici
Per la tettoia originaria, successivamente tamponata abusivamente (tamponatura che sarà rimossa dalla Proprietà) è stata presentata una domanda di sanatoria ai sensi della Legge n. 724/94 Prot. n. 40992/94. La domanda di sanatoria è ancora in itinere e sarà perfezionata a cura e spese della Proprietà. Per le opere eseguite abusivamente, rispetto alla domanda di sanatoria originaria, il Venditore si impegna ad eseguire le relative opere di ripristino, regolarizzando la tettoia dal punto di vista urbanistico antecedentemente al rogito notarile.
Visite
Le visite potranno essere effettuate previo appuntamento da concordare con l’agenzia.
Euro 57000.00 pari ad 900.00 al mq
SCHEDA INFORMATIVA AGGIORNATA IN DATA 28/11/2025
Le informazioni contenute nella presente scheda informativa non potranno costituire vincolo contrattuale.


