Descrizione
Nella parte alta del quartiere di Vitinia e precisamente in Via Bagnocavallo, distante circa 800 metri dalla stazione treno / metro di Vitinia, proponiamo in vendita, in esclusiva, un appartamento posto al piano primo ed ultimo, di una piccola palazzina composta di tre piani (S/1 - rialzato e primo). Nel fabbricato sono presenti sei unità immobiliari tutte ad uso residenziale. La palazzina è rifinita esternamente in cortina ed in tinta. L’appartamento si compone di un soggiorno, cucina, camera da letto, cameretta, bagno e balcone. Disponibilità lastrico solare sovrastante.
ESPOSIZIONE
- Soggiorno ad est;
- Cucina e cameretta a sud;
- Camera matrimoniale e bagno ad ovest.
Rifiniture
Portoncino d’ingresso con serratura di sicurezza. Gli infissi esterni, completamente nuovi, sono in PVC con doppio vetro, provvisti di anta/ribalta, sono dotati di zanzariere. Avvolgibili in PVC. Pavimento in marmittoni e zoccolino in marmo. Impianto citofonico. Impianto elettrico funzionante ma non certificato. Pareti rasate e tinteggiate recentemente. Rubinetteria con miscelatori monocomando. Il bagno dotato di tutti i sanitari è provvisto di un box doccia ed è stato ristrutturato da circa sei anni. Piastre radianti in alluminio.
Nel caso l’acquirente sia interessato al mobilio della cucina, potrà concordare con la Proprietà un eventuale acquisto dello stesso.
È possibile acquistare anche il sovrastante lastrico solare della superficie di mq 62.
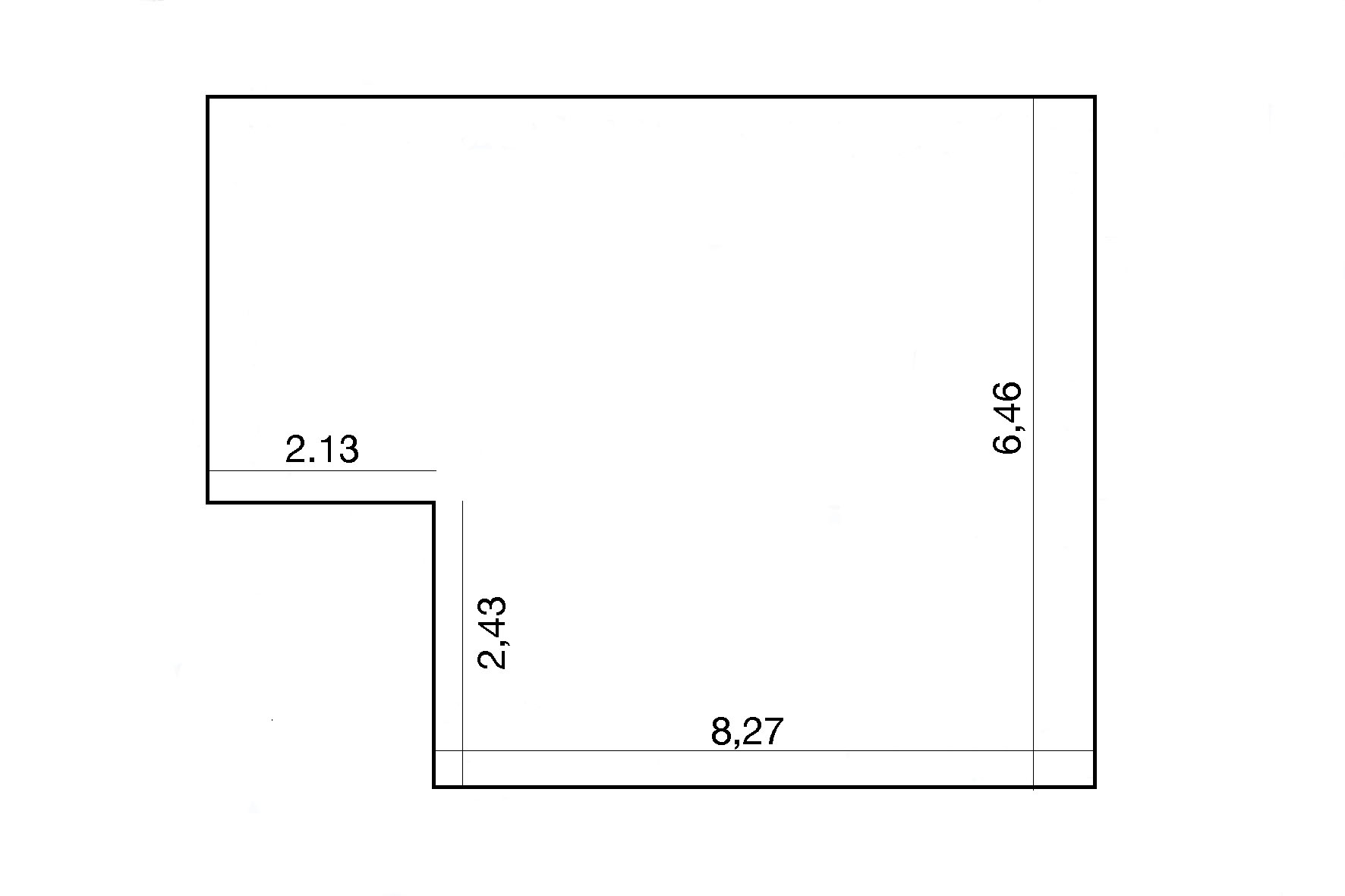
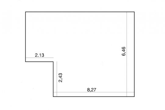
LE FOTOGRAFIE, CHE POTETE OSSERVARE NELLA PRESENTE SCHEDA, SONO STATE SCATTATE UTILIZZANDO UN GRANDANGOLARE. PERTANTO CONSIGLIAMO DI CONSULTARE LA PLANIMETRIA, CON LE RELATIVE MISURE RILEVATE DIRETTAMENTE ALL’INTERNO DELL’IMMOBILE IN QUESTIONE, AFFINCHE’ POSSIATE AVERE DEI RIFERIMENTI PIU’ PRECISI, ANCHE PER UN’EVENTUALE DISPOSIZIONE DEL VOSTRO MOBILIO.
Utenze e condominio
Il Fabbricato è provvisto di Regolamento di Condominio.
Non sono state redatte le Tabelle Millesimali.
Non è presente un’amministrazione condominiale.
L’utenza dell’acqua è condominiale; i relativi consumi vengono ripartiti in base al numero dei residenti. Per i consumi di acqua (nucleo familiare composto da due persone) il costo, orientativamente, è di circa Euro 15,00 ogni due mesi.
L’utenza elettrica e gas sono dirette (attualmente staccate).
La pulizia delle scale viene effettuata in base ad una turnazione tra i residenti. Per la luce delle scale il costo è di circa Euro 8,00 euro a bimestre, per ogni famiglia.
Superficie commerciale - Dati catastali
Superficie catastale mq 71, escluse aree scoperte mq 70.
L’immobile è censito nel N.C.E.U. del Comune di Roma e precisamente: Cat. A/4, classe 7, vani 4, Rendita Euro 537,12.
Conservatoria
PROVENIENZA: Atto di Donazione del 15 novembre 1984 del Notaio Badurina Nicola di Roma.
GRAVAMI: Sono in corso, presso la competente Conservatoria, le visure ipotecarie.
Collegamenti
A circa 800 metri dall’immobile si trova la stazione treno metro di Vitinia, fermata della linea ferroviaria Piramide/Porta San Paolo – Ostia Lido/ Cristoforo Colombo, che consente di raggiungere con circa venti minuti il centro storico ovvero il mare di Ostia.
Riferimenti urbanistici
IN ALLESTIMENTO
Servizi
L’appartamento è ubicato in un quartiere servito da scuole d’infanzia, elementari e medie, supermercati, banche, ufficio postale e uffici Anagrafici del Municipio.
Visite
Le visite potranno essere effettuate previo appuntamento da concordare con l’agenzia.
Euro 135000.00 pari ad 1900.00 al mq
SCHEDA INFORMATIVA AGGIORNATA IN DATA 26/05/2022
Le informazioni contenute nella presente scheda informativa non potranno costituire vincolo contrattuale.

virtual tour 360°
